歡迎訪問河南省長城起重設備集團有限公司!為您提供起重機,廠家熱線:17337313559
17337313559
0371-56629096
聯系人:周經理
銷售熱線:17337313559(微信同號)
座機:0371-56629096
地址:河南省新鄉市長垣起重工業園區
產品詳情:
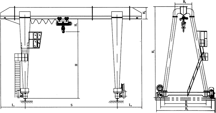
MH型電動葫蘆門式起重機與CD MD等型號的電動葫蘆配套使用,是一種有軌運行的中小型起重機,其適用起重量3~20噸,適用跨度12~30米,工作環境-20℃~+40℃內。
本產品為一般用途起重機,多用于露天場所及倉庫的裝卸或抓取物料,本產品有地面操縱和室內操縱兩種型式。
技術參數:
全包廂雙梁龍門吊在大風天氣的防風等級
梁場龍門吊和貨場龍門吊在作業工況的區別
關于懸挑式龍門吊的優勢特點 輪胎式龍門吊銷售
吊鉤式龍門吊的發展對操作人員的要求
雙梁門式起重機起升機構 核心部件選型優化
關于集裝箱龍門吊的核心作業機構保護裝置
豎井龍門吊采用雙梁橋式結構的作用
關于貨場龍門吊在吊裝構件時的注意事項
門式起重機核心部件安裝技術規范 移動式龍門吊廠家
高架子龍門吊的施工效率與環境濕度有關
廠家銷售熱線
手機:17337313559